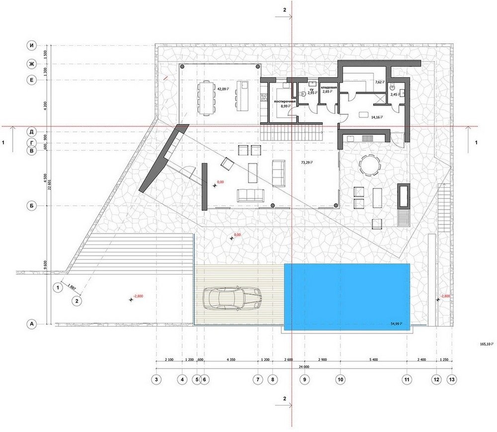
Современная вилла в Сочи 05/01/2017 20:12 Архитектурное бюро Александры Федоровой представило завершенный проект частной резиденции в Сочи, Россия. Двухэтажная вилла расположена на участке с уклоном, и представлена в минималистичном стиле с большими панорамными окнами. Фотографии и картинки 0 Котейка 0 1 309